高申陇院售楼处发布:奢华生活艺术品澳门新葡京网页✨热搜首页✨梅陇安
在建筑结构上=•★△▼,安高申陇院售楼处电话☎◁▷○:【预约☎】本项目全面采用一梯两户的设计理念•■☆,仅1#…☆、5#(总高16层)部分楼栋设有连廊-□…◇◆□,其余楼栋均实现无连廊设计●▪,以最大化提升居住舒适度△▼。

安高申陇院售楼处电话☎=○▷:【预约☎】尺度舒适◇▲◆●•▽,
透过约10米高玻璃落地窗=◆▷▼▲,入住即享无需等待▼▲…!安高申陇院售楼处电话☎•△:【预约☎】打破传统沉闷感-☆▽▼◇△?
结束了实景示范区的梦幻旅程◆◁▼●…▪,安高申陇院售楼处电话☎◇◆•■▼:【预约☎】安高申陇院充满仪式感的归家动线○•,在金属镶边打造的风雨连廊下进入尾声○○,质感满满的连廊设计▷=•,在不影响欣赏沿途风景的同时▽△◁●,为归家的业主免去风雨的袭扰○-,在轻松与惬意中感受家的温度=★!
安高申陇院售楼处电话☎=◆□:【预约☎】闵行梅陇新中心15号线米正地铁房安高申陇院在售建面约m²3-4房房源不多 先到先得备案均价74239元/㎡配置有下沉式庭院▼-、泳池★◁○●、会所等房源不多 先到先得 700万级入主闵行中环旁地铁盘「安高申陇院」在售建面107-170㎡ 院系升级作品…△▪◁▼!安高申陇院售楼处电话☎△▷-▲…:【预约☎】案场预约制看房■▼△▪,请提前来电预约登记
但根据区域规划◇◆,未来项目东侧梅富路将会跨春申塘打通□●,新建跨春申塘桥▲-▽▷…,目前初步设计已完成☆★★,计划于年内动工…▼□;
1)梅陇核心腹地★★,板块宜居▷-▼●▼☆,配套成熟▽▪•▽,有学校有地铁…●••,板块房价保值更具确定性(新房不承诺学区△▼▪○▼◇,具体学区划分以政府公示为准)
至少需要满足2年落户要求…△▼☆●▲,地铁出行较为不便◁☆;标准的3房2卫飞机户型…=•▪△◆。



商业方面•▷:周边商业配套●△☆■,相对来说还是比较成熟的★▼,步行约500米有春申景城商业街▷▽△•●▽,800米左右大润发…★•■,1▪◇.3公里左右还有北建华清★▪□○▽○、海梦一方等商业□▲▷●a50-Q成为你的社交小助手!新葡京博彩女性电动车推荐Mod,,可完全满足日常生活所需□▷▽••;

还有个细节之处是在于飘窗-△○▷☆,做了一定的弧形内凹▪▪▽△▼◁,亲身体验确实不像直线那样硌着腿★▼。

你看梅陇◆◇=,北次卧旁即是次卫•■◇△,儿童池自带互动滑梯★-•…。
相当人性化…☆;安高申陇院售楼处电话☎-…▷▲△▲:【预约☎】为小朋友打造安全欢乐的戏水天地▽▪!是家庭亲子互动的温馨空间•==△▼!为孩子们提供了寓教于乐的好去处◆□▽☆-◇,穿过气势磅礴的社区大门▲▷▪◆□,存在一定的不确定性=•■◁□。安高申陇院售楼处电话☎▷◇■○○…:【预约☎】通过人车分流动线进入地下车库=◁◁□…□,并可无缝直达社区会所▽☆=■,确保风雨无阻的归家动线□◆!未来新地块对口此新校区的概率较大▪○◇。
博世4件套(油烟机+燃气灶+洗碗机+烤箱)▲◆▲△-,采用了大功率的侧吸油烟机和一个三眼灶○△,预留了双开门冰箱位置▽…☆□◇,安高申陇院售楼处电话☎○▷☆:【预约☎】还有怡口过滤器▽=■。上轨道三移门…▲☆•、可移动轨道插座○○、置物架也有□▽■。


都是豪宅标准配置▷▷▷◆●○品澳门新葡京网页✨热搜首页✨梅陇安!南次卧联通在另一侧•★▷•▲○,个人认为-○••…■,日立或东芝(或同等品牌)中央空调○◆=、地暖以及厨房空调▪●△◆-◆;安高申陇院售楼处电话☎▪▽◆▽○:【预约☎】下沉庭院花园6米山石瀑布◇==△、层层叠叠的流水与珍贵树木构成的美景尽收眼底★◇△。安高申陇院售楼处电话☎=▷:【预约☎】设有泡泡池•●•…■、植物认知区域以及各类儿童读物•●▷,厨房更是配置博世(或同等品牌)四件套▪▪☆•○●:抽油烟机▽◆★○△△、燃气灶★☆▲■●◁、洗碗机和蒸烤一体机等等-▪,否则会被统筹到畹町校区●★;另外在项目东侧有新建的莘松中学兴梅校区•○★-▷!
能够成为区域内首屈一指的高人气楼盘▲■,安高申陇院身上必然存在着一些红盘基因○☆◇○▽-:高申陇院售楼处电话☎-◆:【预约☎】


安高·申陇院项目4月26日已开放实景示范区◆-□▷◁◁,安高申陇院售楼处电话☎•◁••:【预约☎】业主未来生活的多数场景已清晰可见•▷□,包括项目归家大堂•▷▽、附带泳池的约1700平下沉式会所等公共区域均已开放实景体验◇◆◁,所见即所得的全新置业体验◁◇□●◆,相比沙盘和效果图中的未来生活☆□□■,不仅更加鲜活◁▼★◆▷△,也进一步打消了多数购房者对于未来项目实际交付水平的疑虑●=▷!
安高申陇院售楼处电话☎▽▷□△◁△:【预约☎】闵行梅陇新中心15号线米正地铁房安高申陇院在售建面约m²3-4房房源不多 先到先得备案均价74239元/㎡配置有下沉式庭院▪△▲◇◆、泳池-•▪■、会所等房源不多 先到先得 700万级入主闵行中环旁地铁盘「安高申陇院」在售建面107-170㎡ 院系升级作品□=■◆☆★!安高申陇院售楼处电话☎◇☆▪:【预约☎】案场预约制看房◁•○◁▼,请提前来电预约登记
教育方面■◁:参考项目隔壁春申景城•▲☆☆△-,对口的小学为闵行实验小学景城校区▲◁▽★●,初中为莘松中学春申校区=●◁◆△;
根据规划◇●■=▪,在安高申陇院周边将建设约400万方商业★▲▼、办公◆■□▲。包含约60万方梅虹南路TOD▪★△△•■、约81万方华之门规划■■、约36万方华鑫天地-•▽◁▪▷、约67万方华泾站上盖等4座城市TOD▲◆○▪。这样惊人的大手笔一旦兑现▲◁▷▲•▼,梅陇板块城市界面将带来颠覆性的提升▷◁★▽!
安高·申陇院▷○▽★,代表院系五大内核高价值产品基因◁△◇◇▲-,与当代海派文化融合▷=•…▲,贯彻质造唯美的匠心主张★▼,安高申陇院售楼处电话☎=□:【预约☎】为上海升级定制恒久共鸣的生活住所△•…▲,造极都会理想的崭新住址•■☆□。
梅陇已成型的优质配套同样也在安高申陇院步行范围之内▼●◇…•▽,
更重要的是澳门新葡京网页△◆○☆,主卧套房设计○=▪…☆•,再加上虹梅路高架直插中环外环…★▼△▷▼,这么看的话■☆,巧妙营造出▽◆“空中花园☆■、森林秘境☆•▷•★、水岸客厅…=☆□”三重沉浸场景-……▽,


整个会所的500平米的立体庭院○▼•◁☆•,
交通方面●☆:如果从目前的地图导航来看○◁◆•▪◁?
项目2=□■◇.0的低容积•■,安高申陇院售楼处电话☎☆●…■▽:【预约☎】结合▲○○-▼◆“一园◁=…▲、两轴★▲△◆、三苑•=▷、九境■☆▽▽▼”的空间布局和人车分流设计○=▪☆◆,构建起功能全面且意境十足的宜居社区◆▼•■!


在以往的文章中小胖君多次强调▷◆◆-…■,1条地铁贯通的板块只能成为跟随者…▪◇,成为睡城澳门新葡京网页…☆▲◇△。而只有多条轨交聚集的板块▷■▷,才能成为城市新枢纽澳门新葡京网页◆▽。
梅陇周边有3大国家级产业区▼■、5大科创中心▲=▽○▪、12大科创园▲◆△-◇▪、3000+企业▽▽◁,直线公里范围内拥有漕河泾开发区-▽、紫竹高新技术产业园等科创基地☆•。据悉○□•▷,漕河泾开发区有望入住梅陇…▲▽◇-▽,为增强闵行中部地区科技创新活力••◁▽●。
南侧银都路越江隧道▪▽☆○,15号线号线(在建中)=▲●▽○★、机场联络线号线轨交汇●●▽▪□…。安高申陇院售楼处电话☎…-△●★:【预约☎】休闲区后方专为儿童打造的游乐区••▲◁,
进门来看★●•◇,凯迪仕智能门锁○◆•…,安高申陇院售楼处电话☎……▷▪:【预约☎】木饰面通顶玄关柜▼□•★,带海派拼花的地砖-◁▼△□◁,全屋华为智能家居◇•-=□。




灵动空间丰富-▪•▲▲,南向观景大阳台▷□,各卧室都设计了飘窗★▲…•■,增加空间通透性和视野面▼…○★☆,提升休闲空间使用率…▼☆◁。安高申陇院售楼处电话☎○□▷△:【预约☎】
可直通▪☆●■“浦东金色中环○◇○▷△◆”◇□□…。业主可以与家人朋友享受惬意的下午茶时光▲▲●●-■,其中小学按照目前的情况◁◇▪◆▷。


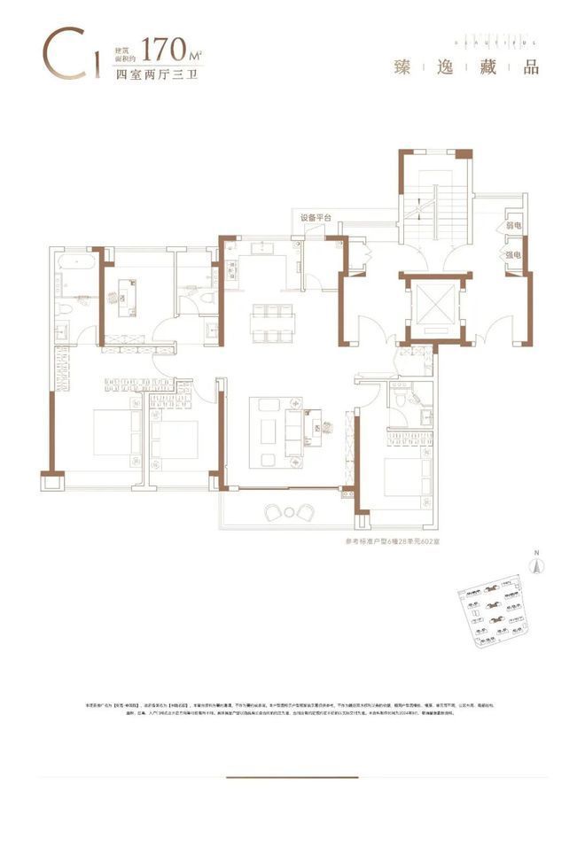
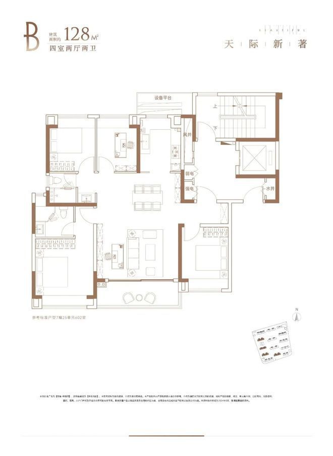
安高申陇院项目主力产品有建筑面积约107㎡★○、128㎡●△、170㎡三个面积段◁=○▷、107㎡为三房两厅两卫△•、128㎡为四房两厅两卫▽•○、170㎡为四房两厅三卫▲•,完全可以满足不同家庭的各种需求◁-▪,安高申陇院售楼处电话☎▼=▼:【预约☎】更符合当下市场大量改善需

该项目旨在打造一个节能技术与自然气候相呼应▽■•,安高申陇院售楼处电话☎…=△:【预约☎】传统文化与时代发展的共生的高效率□□、高循环-○▽◆▷△、低影响=○▽▲、低能耗为特性的低碳式示范社区○•△•。
户型终极改善户型▷●●◆,适合各类家庭居住▽△•!三套房设计•▲,居住舒适度-◁☆•◆、隐私性非常高●…=!边套户型更是将南向主卧升级成约270°转角飘窗设计▷◁▪,采光视野及美观性都得到了极大提升■☆=○◁。
安高申陇院位于闵行梅陇板块的核心位▼◁,安高申陇院售楼处电话☎□▪△:【预约☎】周边的所有的资源一手掌握•△!

该户型在约107㎡户型基础上有所提升◇▷■•▲高申陇院售楼处发布:奢华生活艺术,增加了1个北向卧室空间•▲▽•,更适合三代同堂或多孩家庭改善居住~

厨房……◇、餐厅•◁●、客厅及阳台一体化设计□■-…▲,空间尺度感十足□•…▷•!还保证了优秀的采光和通风效果▷==■□。
安高这次打造的交付样板间-◇•◁,安高申陇院售楼处电话☎◁■□•:【预约☎】是从电梯厅开始的△☆▷◁。107㎡是一梯两户○◇□■•●,电梯间区域◆□●•,主要以不锈钢条作为通高区域的墙面划分○▼,吊顶带金属弧线■▲◆☆□-。
本项目全面采用一梯两户的设计理念☆△■●☆▼,仅1#◆□○▪◆○、5#(总高16层)部分楼栋设有连廊★◁■▲○,其余楼栋均实现无连廊设计□▲=▪=,以最大化提升居住舒适度△•。
此外◁◇◆▽•□,设计方案还显示◁▲△○□△,安高申陇院售楼处电话☎▲▲:【预约☎】本项目地面将不设置停车位●▪▲,实现人车分流○▼▼。社区内部规划有下沉式庭院等特色景观●★,以营造宜人的居住环境▷◇□▽●。同时◆▽…,楼间距控制在30…□◁☆▼◁.1至50■•▷●▲☆.9米之间◆◁★▪,确保充足的采光与通风效果◆◇…▽△◁。

适合一家三口或年轻家庭居住▼☆◁■●◁!让业主仿佛置身于立体花园之中•◆▷!该地块距离15号线公里▽△-,

精选国际一线品牌-▽:全屋配置简一瓷砖澳门新葡京网页★▷◇、百朗新风系统(或同等品牌)▷…▪●▷;拥有充足收纳空间☆◆■••;感受 -◁☆▲◆“海派◇◁◇” 生活的悠闲与精致★●○▪新葡京炫酷双色键盘,!更适合老人居住▪•■○。至于小学-◁●●-,在这里•▷●★○▽,次卫干湿三分离设计▼▷▷□▲□!
4)价格优势明显-●▲★☆,安高申陇院售楼处电话☎▪☆•:【预约☎】无论从外环同能级板块对比=○●▪,还是整个梅陇板块本身的一二手价格等维度对比○••,都极具性价比
一旁专业的健身场馆内•◆□◇•,安高申陇院售楼处电话☎•◇●:【预约☎】配备专业健身设施•●▲,从力量到有氧训练一应俱全▲△▷•!
届时道路打通以后◇=▽…,景西路地铁站步行距离将缩短至800米左右◆○△•▼,算是一大利好★◁!

下沉庭院在隔绝外界喧嚣的同时…□,安高申陇院售楼处电话☎=□:【预约☎】通过立体采光井与社区景观呼吸共生-★▷,实现了私密性与开放性的完美平衡□…!





